師資保證,業師精選圖
師資保證,業師精選

學習設計與學習軟體不同,堅持聘請擁有實戰經驗與創意想法的資深設計師為課程講師,讓學生在課堂能一舉學到創意思考與設計技巧。

彈窗關閉
Thank you

我們將寄出赫綵的最新消息到您的信箱!

彈窗關閉
設計專欄

-ARTICLE-

設計專欄 設計專欄 設計專欄

完美辦公空間設計全攻略:掌握動線、採光、色彩,打造高效舒適的專業工作環境

分類於設計趨勢

完美辦公空間設計全攻略:掌握動線、採光、色彩,打造高效舒適的專業工作環境 首圖

想打造舒適又高效的辦公空間?
無論你是正在學習室內設計的初學者,或正在接案、職涯成長中的設計師,掌握空間動線、採光配置、色彩風格與休息區規劃,都是打造優質辦公室的必備能力。

大家好,我是 Sandra,畢業於中華科技大學建築系室內設計組,目前任職於室內設計公司,同時也是赫綵室內設計課程的講師,專長於住家與辦公空間設計規劃。

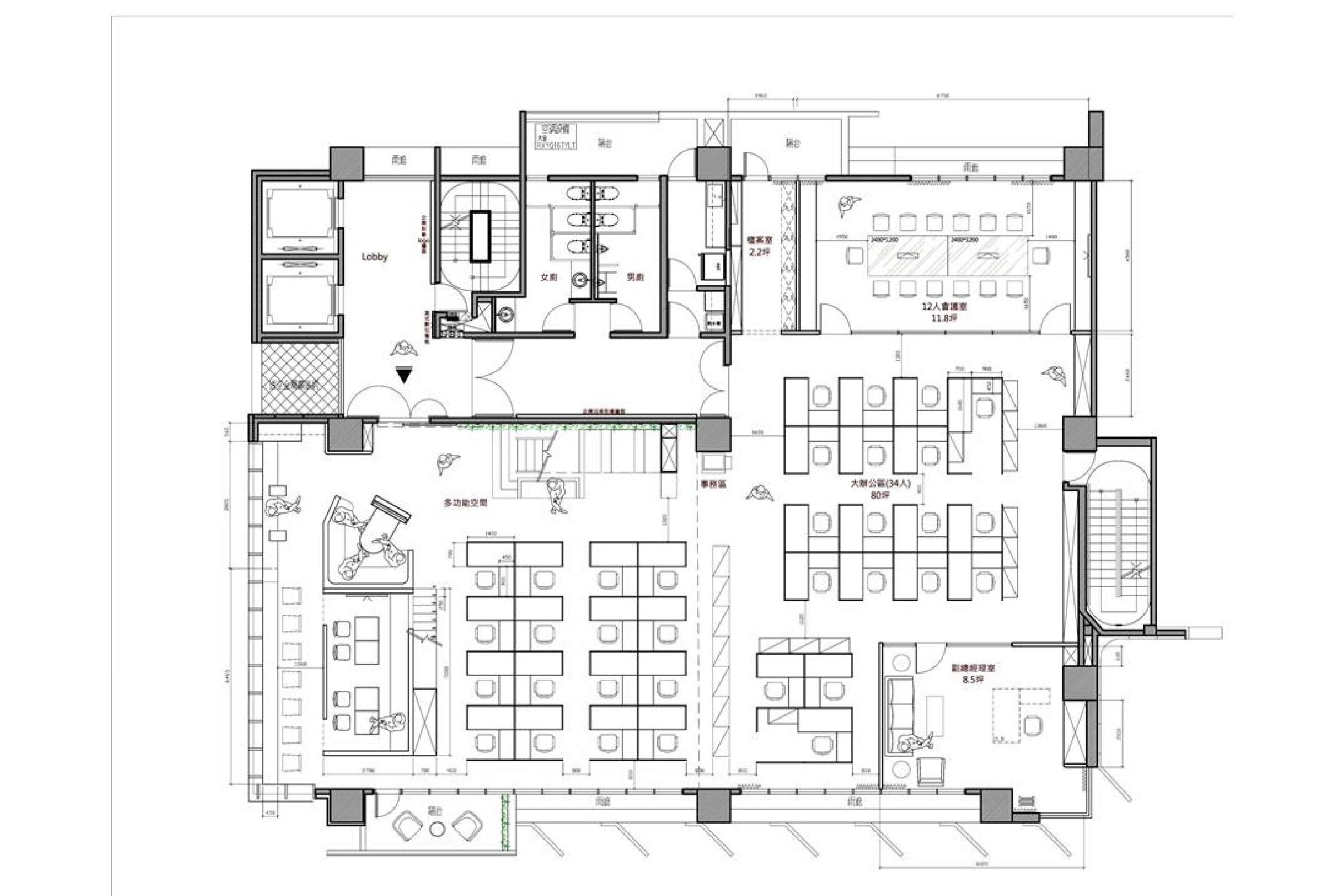
平面設計圖是設計溝通的橋樑。它不只是格局的呈現,更是業主、廠商、設計師之間溝通的共同語言。能將業主理想中的格局需求轉化為可執行方案,也方便與廠商進行協作。因此,熟悉設計圖語言是室內設計入門的基礎。

而在商辦空間中,「辦公室」不只是工作的地方,更是企業文化、品牌形象與員工效率的整體展現,掌握空間配置原則,就能讓員工工作效率提升,也給客戶留下深刻印象。

 

打造高效舒適辦公室:動線、採光、色彩與休息區設計要點

技巧1:辦公空間動線與座位規劃攻略


良好的動線規劃能決定整個辦公室的使用效率。以下是規劃時最重要的三大原則:
打造高效舒適辦公室:辦公空間動線與座位規劃攻略

(一)開放式座位:提升團隊溝通與協作


適合團隊合作性質的公司,促進溝通與即時協作。例如:新創團隊、行銷設計部門、客服與營運中心等。

✔ 提升溝通速度
✔ 增加透明感與團隊信任
✔ 成本相對低,彈性高


 

(二)半開放式或獨立座位:提升專注力


適合需要專注處理個人任務的單位,提高員工專注度。例如:工程師、設計師、行政與財務等。

✔ 降低噪音干擾
✔ 增加工作效率
✔ 保有個人空間


 

(三)動線規劃重點:流暢、不干擾、好識別


明確區分老闆座位、各部門辦公區、會議室與茶水間,避免互相干擾,提高整體工作效率。


動線規劃=空間心理學
流暢的動線能降低員工疲勞,提高效率,也能讓客戶感受到企業的專業度。

 

技巧2:採光設計與舒適度提升策略


(一)自然光分布:避免西曬直接照射座位,可將光線導入走道或休息區。
(二)窗戶位置規劃:理想情況是「均勻散射光」。若光線集中在部分位置,可能造成視覺疲勞與明暗落差。
(三)搭配植物造景:陽光透過植栽折射,營造辦公室明媚的環境,增加空間活力與舒適感。

💡 良好的採光不僅美觀,也影響員工情緒與健康,是室內設計的人因工程考量之一。
打造高效舒適辦公室:風格、色彩與燈光設計心法

技巧3:風格、色彩與燈光設計心法


(一)避免單調白牆:選擇明亮活潑的色彩,提升辦公氛圍。
(二)燈光配置:結合自然光與人工光源,營造主題性與統一風格。
(三)小型擺飾與植栽加分:簡單植物或造景提升客戶印象及員工幸福感。

💡 色彩心理學在辦公空間中可用來激發創意、舒緩壓力,設計師需有基礎認知。

 

技巧4:茶水間與休息區的規劃要點


(一)配備:飲水機、冰箱、咖啡機、微波爐、零食與座位區。
(二)功能:提供交流與放鬆空間,減輕工作壓力。
(三)設計理念:讓員工在短暫休息中得到舒緩,提升整體工作效率。

💡 茶水間與休息區是辦公空間「軟實力」的延伸,影響公司文化與員工滿意度。

 

不同階段設計師的成長路線


(一)初學者階段:奠定基礎能力:熟悉 AutoCAD、Sketchup,理解辦公室設計邏輯,蒐集資料並嘗試設計。
(二)進階階段:從設計走向實務:設計不同辦公空間需求,學習接案技巧,準備作品集。
(三)專業階段:跨領域整合能力:關注市場趨勢,累積職場經驗,創造個人價值。

💡 建議建立「作品集 + 案例分析 + 自我反思」的成長系統,讓技能與經驗同步提升。

 

室內設計課程三大核心


(一)軟體操作:掌握設計工具快捷鍵與功能,是進入設計的入場券。
(二)設計邏輯:不同空間類型有其專屬邏輯,理解後才能創造實用設計。
(三)多元需求應對:能根據不同業主需求設計格局與巧思,是專業設計師不可或缺的能力。

💡 課程中也會訓練團隊合作、客戶溝通與專案管理能力,與實務接軌。
專業室內設計師必備技能清單
 

專業室內設計師必備技能清單


🏠 必備技能1:空間設計圖
🏠 必備技能2:櫃體造型設計
🏠 必備技能3:色彩與材質規劃
🏠 必備技能4:燈光計劃與工程
🏠 必備技能5:3D空間視覺模擬
🏠 必備技能6:竣工查驗與現場協作


💡 每項技能都可作為職場能力指標,建議按順序學習並在實務中反覆練習。

 

室內設計師職涯發展路線


●求職方向:室內設計師、軟裝設計師、系統家具設計師、空間設計規劃師
●SOHO族:3D空間視覺模擬繪圖師、施工圖面繪圖師、商業空間專案設計師

💡 了解職涯路線能幫助設計師規劃技能學習、作品集方向及自我定位。

 

從基礎到專業,掌握空間設計全方位能力


室內設計不只是美感的呈現,更是功能與心理的結合。掌握動線規劃、採光設計、風格搭配、休息區規劃,以及軟體與專業技能,才能真正打造出舒適、實用又有美感的辦公空間。

不論你是初學者、進階設計師,或是希望成為專業室內設計師,持續學習與實踐才是最可靠的成長策略。每一次設計練習、每一個專案反思、每一次與客戶溝通的經驗,都是累積專業價值的關鍵。

用心規劃、勇於實踐,你也可以成為掌握功能與美學的專業室內設計師。
 

AutoCAD、SketchUp 室內設計軟體課程推薦


赫綵設計學院提供豐富的室內設計課程,其中新手入門必學的 AutoCAD、SketchUp 課程在赫綵都能找到!現在報名就贈免費試聽優惠!讓你在室內設計領域中脫穎而出!


1. AutoCAD 設計實務
新手室內設計師入門必學!赫綵規劃精華 60 小時專業培訓,透過「軟體介紹與操作」、「平面配置製圖」、「工程圖製作」三階段完整訓練,由業界專業師資帶領,讓你從 AutoCAD 軟體的基本指令操作,到工程圖繪製及建模,全方位掌握室內設計圖面製作。除此之外,赫綵課程更加著重實務演練,將人體工學尺寸融入設計內,幫助學生熟練運用 AutoCAD 來規劃設計出適合人們居住的環境,實現自己的室內設計理念!!

2. SketchUp 3D空間建模
提高職場競爭力必學!赫綵規劃精華 42 小時專業培訓,透過「軟體使用」、「空間建模製作」、「渲染技法實務」三大主軸,加強你對於 3D 建模與渲染的專業知識及參數設定技巧,幫助你以輕鬆高效率的方式,製作出超擬真的室內外 3D 透視圖!


為什麼要選擇「赫綵設計學院」

• OMO 線上線下整合課程:赫綵採用線上直播+實體教學雙管齊下的課程模式,讓你的學習充滿彈性,同時保留了由老師即時解惑糾錯的實體課堂優勢。課程亦提供全程錄影服務,輕鬆重看複習,打好基礎。
• Adobe 官方認證訓練中心:赫綵為 Adobe AATC 認證的培訓中心,除了能為你提供專業的 Adobe 軟體教學,更保證你在課程結業後能取得證書,履歷更加分。
• 接案管道媒合:部分課程中將由赫綵協助你與業界媒合,讓你的好設計有更多曝光機會!目前赫綵學員在完成課程後就職率高達 97.9%,結業即就業!
• 課程免費試聽:擔心課程和你的預期不一樣嗎?你可先行免費預約試聽,體驗課程內容,再決定是否報名!
• 專業師資指導:聘請 200 位以上業界實務經驗豐富的設計師授課,不僅傳授專業知識,更能分享業界實戰經驗,幫助你快速銜接職場。
• 同儕討論與協同教學:創建班級學習群組,與班上同學&助教在下課後也能互相交流,讓學習不再是件孤單的事!結業後也回訓成為師資,透過輔導學弟妹來賺點數,換取其他課程!
赫小編
Author赫小編

掌握赫綵最新大小事的貼心系小編
任何疑難雜症都可以到LINE@官方帳號 → 搜尋 @appedu 找到我!

學專業拚加薪!斜槓轉職,職場逆襲趁現在!
學專業拚加薪!斜槓轉職,職場逆襲趁現在!
綠問號
延伸閱讀

來看看我們的其他文章吧

webchat_bg webchat_bg_text